
JR福山駅から徒歩10分(750m)。おしゃれな「とおり町ストリートガーデン 福山本通商店街」に面した清楚なレンタルスペースです。
楽器練習、レッスン教室、セミナー、ミーティング、テレワーク、オンライン会議、サテライト教室などにご利用いただけます。利用時間9:00~22:00/最低利用時間2時間。
広島県福山市笠岡町2-22 安原楽器2F tel084-922-1701
お知らせ
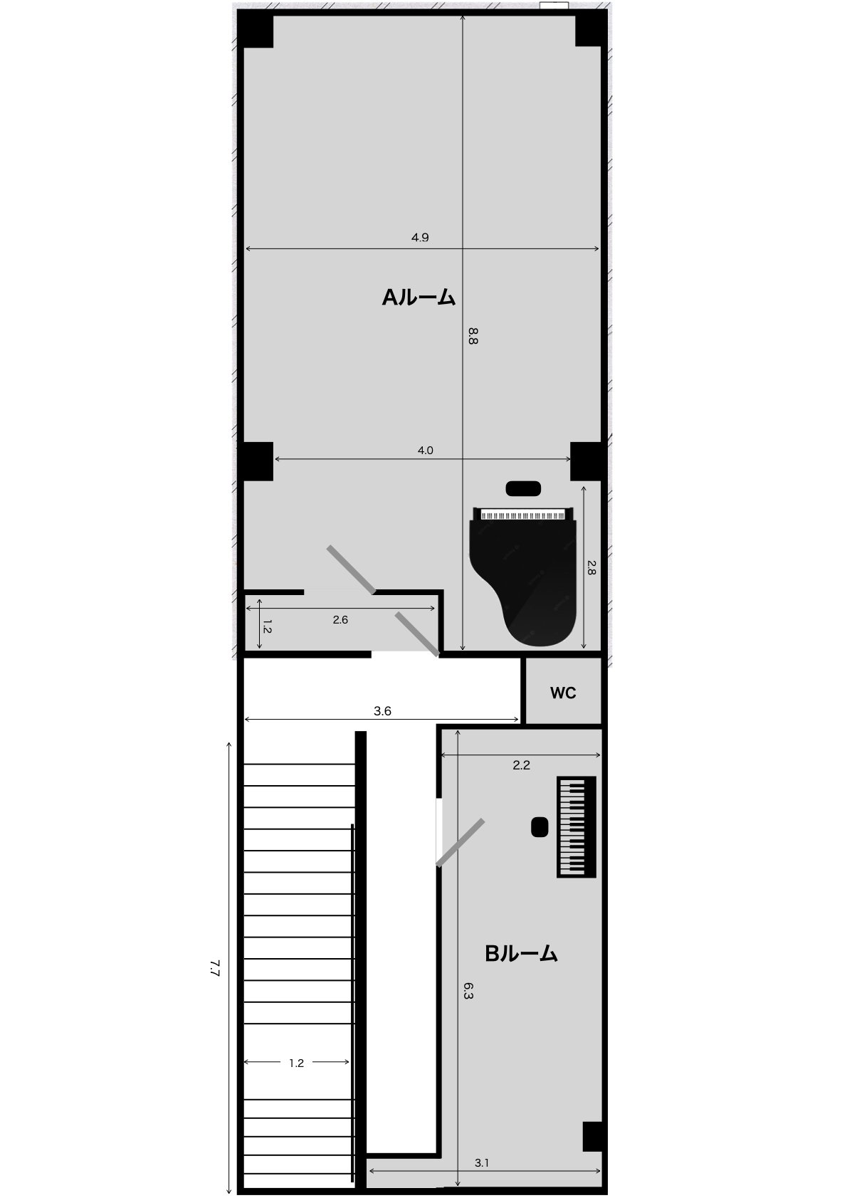
Aルーム(2F)
8~16人程度のグループレッスンやセミナー、会議等にご利用いただけるゆったりとしたスペースです。
グランドピアノでの本格的な練習やレッスンや楽器アンサンブルにご利用いただけます。利用時間9:00~22:00/最低利用時間2時間〜。スクリーン、ホワイトボード、キーボード、音響システムも利用可。




Bルーム(2F)
とおり町ストリートガーデンに面した、こじんまりとした明るいスペースです。ピアノ練習や音楽レッスンの他に少人数のミーティングやテレワークなどにご利用ください。
利用時間9:00~22:00/最低利用2時間から。アップライトピアノ、モニターアンプも設備。


YASUHARAレンタルスペース利用料
| ルーム | 付帯設備(無料) | 料金(2h) |
|---|---|---|
| Aルーム (最大18人) | テーブル×8、イス×20、ホワイトボード(1200mm×900mm)、ミキサー(Soundcraft EPM6) パワーアンプ、スピーカー、 ピアノ椅子(YAMAHA No.5) 、88鍵デジタルピアノ(KORG B2)、 譜面台、カメラ三脚、スマホスタンド、Wi-Fi | 2500円 |
| Bルーム (最大5人) | テーブル、イス×4、ウォールミラー、 ピアノ椅子(YAMAHA No.5) パワードモニター(YAMAHA MS60S)、譜面台、カメラ三脚、Wi-Fi | 2000円 |
| 楽器・機材 | オプション(有料) | 料金 |
|---|---|---|
| グランドピアノ | <Aルーム> ATLAS AG7 7フィートコンサート D212cm ロイヤルジョージハンマー | +1000円 |
| アップライトピアノ | <Bルーム> ATLAS SEA110 ヨーロピアンコンソールタイプ アベルハンマー | +500円 |
| プロジェクター | フルHD 3,800lm 入力端子/HDMI、MHL、ミニD-sub 15ピン、RCAピン 80インチスクリーン | +1000円 |
| マイクロフォン | ダイナミックマイク SHURE SM58、BEHRINGER XM8500 | +500円 |
| マイクロフォン | ダイナミックマイク/コンデンサマイク 3〜6本 | +1000円 |
| USBオーディオI/F | MOTU M2 2in 2out XLR / TRSコンボジャック x2 出力/バランス 1/4インチ TRS x2 /RCAアウトx2 | +500円 |
| Bluetoothスピーカー | Tribit MaxSound Plus 出力24W(12W×12W) Bluetooth接続 LINE入力(Mini) コンパクトタイプ | +500円 |
※表示金額は2時間の税込料金です。最低利用時間は2時間となり、2時間超過は時間割計算します。
※ピアノは定期的に調律・調整していますが、ベストコンディションを保証するするものではありません。
※防犯のためカメラを設置しています。
YASUHARAレンタルスペース空き状況
※カレンダー内の[予定あり]をクリック/タップすると詳細時間が表示されます。
・お支払い方法 現金、QRコード決済(PayPay、楽天ペイ、D払い、メルペイ)、クレジットカード
(Square/リンクメール)、銀行振込をご利用いただけます。
・振込先 PayPay銀行 (店番号)005 ビジネス営業部(口座)4158254 カ)ヤスハラガッキ
・利用者の都合によるキャンセルは、原則として次の基準で申し受けます。
3日~7日前までのキャンセル・・・・使用料の50%
前日~当日のキャンセル・・・・・・・使用料の100%
〒720-0044 広島県福山市笠岡町2-22 安原楽器 tel 084-922-1701 緊急電話 070-9220-1701
アクセス

・JR福山駅から東へ徒歩約10分(750m)にある緑豊かな「とおり町ストリートガーデン/福山本通商店街」の中央に位置します。安原楽器の2Fがレンタルスペースです。
・ふくやま芸術文化ホール リーデンローズへは徒歩15分でアクセスできます。
・とおり町 本通商店街は10:00~20:00の時間帯は歩行者専用道路となります。20:00~10:00は車両進入可です。
